
Wohn- und Atelierhaus
ENTWURF
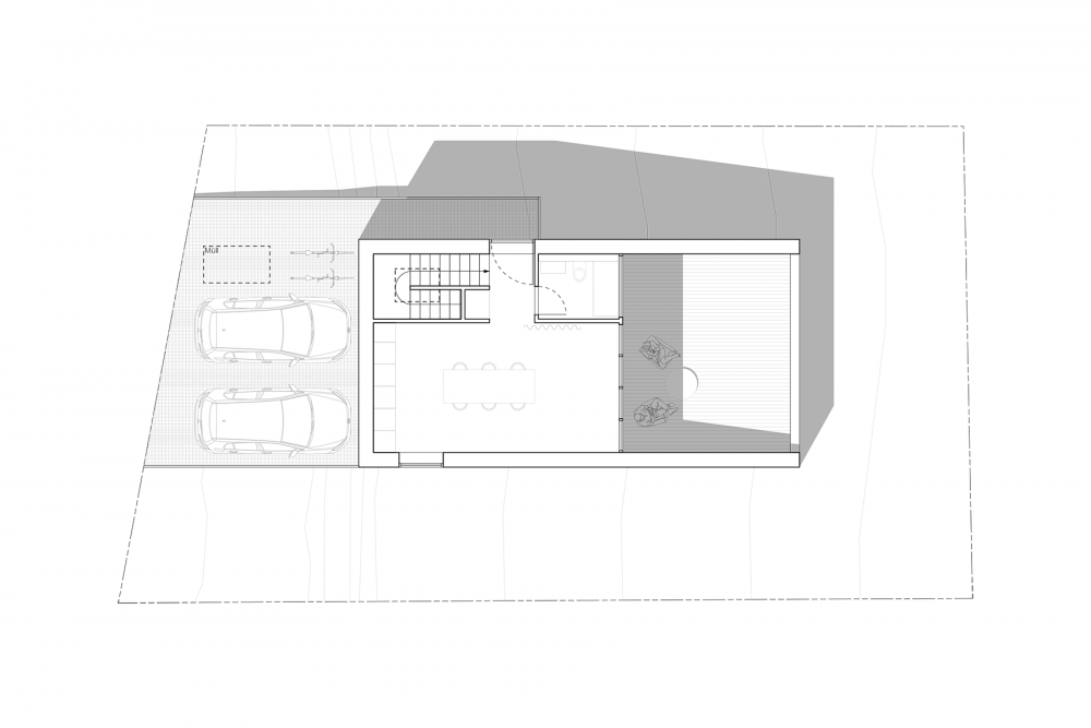
Das Wohn- und Atelierhaus fügt sich unaufgeregt in das gestalterisch heterogene Umfeld ein. Der schmale Baukörper mit seinen Abmessungen von 6 x 12 Meter entwickelt sich entlang des Hangrundstücks und öffnet sich zur Nahe mit Blick ins Tal. Der vom Fussweg abgesetzte Baukörper wird über eine Plattform mit Steg erschlossen. Dies zu Gunsten von mehr unberührter Grünfläche sowie der Reduktion potenzieller Versiegelung.
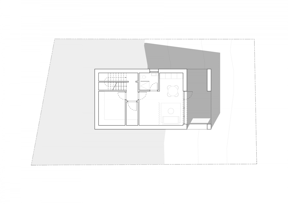
Dem Bauherrenwunsch nach einer felxiblen Raumaufteilung die sowohl eine Kombinaiton aus Wohnen und Arbeit als auch eine reine Wohnutzung vorraussetzt, wird durch die klare Zonierung der einzelnen Geschosse Sorge gertagen. Die Funktionszone mit vertikaler Erschliessung sowie den Nassräumen wird entlang des Baukörpers angeordnet.
KONSTRUKTION
Die Hybridkonstruktion aus Holz und Beton bindet die Stärken beider Materialien. Der dominierende Baustoff Holz wird für alle erdunberührten Bauteile verwendet, während die sich im Erdreich befindenden Bauteile aus Beton gefertigt werden. Die umlaufende Fassade aus Lärchenholz verleiht dem dominierenden Baustoff seine Sichtbarkeit.






