
Alte Wagonfabrik KITA / Kirche / Event
KONZEPT
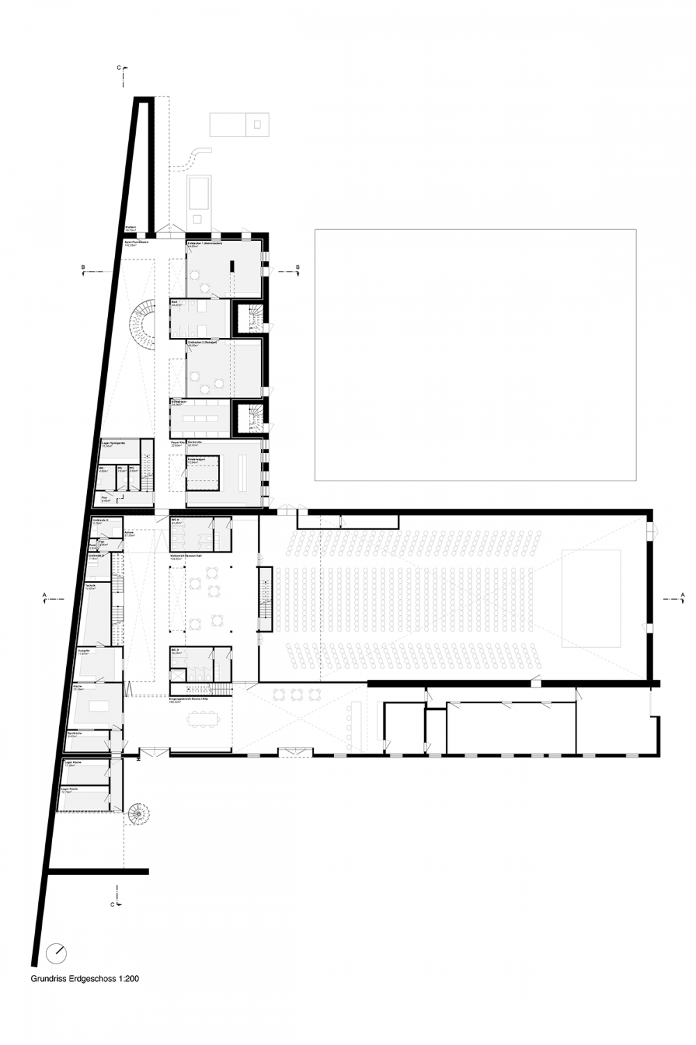
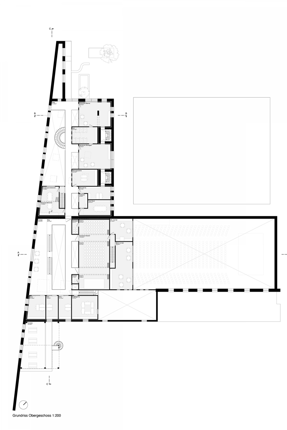
Die als Ziegelbau ausgeführte Halle ist Teil und zugleich wichtiger Baustein der alten Waggonfabrik in Mainz. Massive Stahlbetonträger in der Deckenebene, alte Industrieverglasung, enorme Raumhöhen sowie partiell eingesetzte Oberlichter bestimmen die Wirkung des Innenraumes. Das neue Raumkonzept ordnet sich genau dieser Qualität unter und äussert sich in Form eines Haus-in-Haus-Konzeptes. Somit werden die bestehenden Qualitäten aufgenommen und durch eine bedarfsorientierte Neu-Zonierung und ein aufgabenübergreifendes Erschliessungskonzept unterstrichen und für die angestrebte Nutzung optimiert.
Das benötigte Raumprogramm wird in einzelne Volumen übersetzt und in den Bestand als „Boxen“ implantiert. Diese neuen Volumen werden, zum Teil zueinander versetzt, über zwei Geschosse angeordnet. Das durchgängige, farblich abgesetzte Erschliessungsband schafft die Verbindung der einzelnen Volumen untereinander und vernetzt die zu bespielenden Bereiche KITA mit Aussenbereich, Kirche und Event. Weiterhin dient das Band als Wegweiser und Orientierungshilfe. An diesem Erschliessungsband angeordnete Treppen bilden die vertikale Verbindung der beiden Geschosse untereinander. Zwischen den eigenständigen, neu platzierten Volumen entsteht ein fließender Raum, der sich abwechselnd sowohl horizontal als auch vertikal weitet und verengt und damit ideale Orte für Pausen, Ausstellungen und Versammlungen schafft und zum Austausch über die einzelnen Gruppen und Teams hinaus anregt. Gleichzeitig bleibt jedoch der Hallenraum als Ganzes wahrnehmbar.



KONSTRUKTION
Für das Haus-in-Haus-Konzept sind z.T. vorgefertigte als auch vor Ort gefertigte „Holzboxen“ in Holzständerbauweise (wahlweise auch in Holzmassivbauweise) einsetzbar. Dies ermöglicht einen hohen Vorfertigungsgrad als auch eine trockene Baustelle in der Bauphase. Beides Faktoren welche sich in der Bauzeit positiv bemerkbar machen. Ein gedämmter Wand-, Boden- und Dachaufbau der einzelnen Bauteile sorgt für ein angenehmes Raumklima der jeweiligen Boxen. Aufgrund der Wahl eines Leichtbausystems sind zum einen geringere Eigenlasten als auch damit bedingte, geringere statische Eingriffe in den Bestand zu erwarten.



MATERIAL + FARBE
Es wird eine helle und freundliche Farbgebung gewählt. Das in gelb abgesetzte Erschliessungsband markiert die Wegeführung und erhält zugleich die Funktion eines Wegeleitsystems. Es durchdringt das Bestandsvolumen und wird bis in den Aussenbereich der KITA weitergeführt. Die einzelnen Boxen bleiben als Holzbauten visuell als auch haptisch, innen sowie aussen, erkennbar und erhalten farblich dezent abgestufte Holzfassaden (Dunkel- und Hellblau, Natur und Weiß). Eine eher zurückhaltende Farbwahl der Boxen hat den Gedanken der Nachhaltigkeit der Nutzung sowie der Hervorhebung des gelb abgesetzten Erschliessungsbandes als Grundlage. Die Zu- und Ausgänge der jeweiligen Räume sind farblich einheitlich markiert. Um einem in Material und Farbe nachhaltigem Konzept treu zu bleiben, ist als neuer Bodenbelag in der KITA / Kids-Bereich sowie in allen weiteren neuen Räumen ein Linoleum angedacht. Um in den offenen zweigeschossigen Bereichen dem möglichen Lärmpegel entgegenzuwirken, werden schallabsorbierende Maßnahmen in Form von an Wand und Möbel applizierten Textilien vorgesehen.
BELICHTUNG + BELÜFTUNG
Durch die partielle Anordnung der einzelnen Räume an der Bestandsfassade, ist es möglich diese über die Bestandsöffnungen zu belichten und zu belüften. Dies betrifft beispielsweise alle Gruppenräume der KITA / Kids-Bereich. Zweigeschossige offene Zonen werden so angeordnet, dass Sie eine direkte Sichtbeziehung zum Aussenraum haben und über die Bestandsfassade belichtet werden können. Ein weiteres Belichten leisten z. T. bestehende als auch neue Oberlichter zwischen den Trägern in der Dachebene. Räume ohne direkte Belichtung / Belüftung sind so angeordnet, dass Sie indirekt über den vorgeschalteten Raum belichtet werden können, sofern dies die jeweilige Nutzung erfordert. Weiterhin werden diese mit einer kontrollierten Be- und Entlüftung ausgestattet.




